France University
About Project
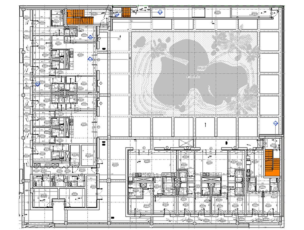
The project is located in Cairo, Egypt, commissioned by Le France University as part of its expansion within the educational sector. Designed to accommodate up to 3,000 students, the development provides modern facilities and infrastructure to support high-quality learning environments.
AMC is delivering comprehensive shop drawing services across all trades, ensuring design coordination and accuracy during execution. The project is currently under construction, with a focus on achieving efficiency, precision, and alignment with the client’s vision.

Project Documentation and Details
AMC has exerted significant effort to review, update, and enhance the architectural models for the France University Project, ensuring they meet the highest quality standards. The team performed extensive modifications to achieve a precise and fully coordinated BIM model in compliance with AMC’s standards, which emphasize accuracy, clarity, and integration across all disciplines.
As part of the deliverables, AMC provided a comprehensive package of architectural drawings, including plans, sections, elevations, details, and schedules. Each document was carefully prepared to reflect the latest model updates and coordination results, enabling smooth construction implementation, reducing potential site conflicts, and fulfilling the client’s specific requirements with precision.





