Mishraq Project
About Project
Al Mishraq will be the city’s second largest district (680,000 m²), designed as a vibrant hub that integrates living, working, and leisure in a sustainable 24/7 environment.
Central Spine: shaded pedestrian corridor with smart cooling technologies, inspired by Saudi heritage and future vision.
Integrated spaces: residential, workplace, retail, and public amenities blended with social and cultural activities.
Creative hub: institutes, public art displays, and opportunities for artists to showcase their work.
Phase One: 105,000 m² of retail, residential, offices, and incubators, plus an 8-screen cinema (900 seats) and 1,500 smart underground parking spaces connected to the city app.
It will serve as a laboratory for innovation and creativity, showcasing contemporary Salmani architecture and reflecting Saudi Arabia’s balance between tradition and progress.

Project Interior Design
For the Mishraq Project, the BIM modeling and coordination works have been fully developed to deliver a complete BIM model containing all required details to meet the client’s requirements. This included executing all coordination tasks and BIM works in full compliance with the approved standards.
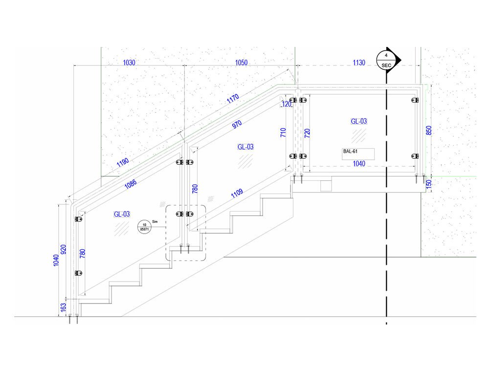
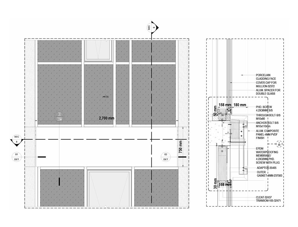
Project Documentation and Details
AMC has exerted significant effort to review, update, and enhance the architectural models for the Mishraq Project, ensuring they meet the highest quality standards. The team carried out extensive modifications to achieve a precise and fully coordinated BIM model in compliance with AMC’s standards, which emphasize accuracy, clarity, and seamless integration across all disciplines.
As part of the deliverables, AMC provided a comprehensive package of architectural drawings, including plans, sections, elevations, details, and schedules. Each document was meticulously prepared to reflect the latest model updates and coordination results, supporting smooth construction implementation, minimizing potential site conflicts, and meeting the client’s specific requirements with precision and efficiency.















