New Giza University
About Project
Phase 1 includes 4 Buildings:
- Health Sciences:17,200 square meters (lecture halls, labs, library, café, administration and public spaces and amenities)
- Economics Business School: 7,300 square meters
- Pharmacy and Dentistry School:13,400 square meters
- Utility Building (cooling plant and mechanical services): 2,700 square meter
Phase 2 comprises 6 buildings:
- Medical: 12,000 square meters
- Dentistry: 14,000 square meters
- Pharmacy, Nursing & Health Sciences: 11,000 square meters
- Student Center: 5,000 square meters
- Utility Building: 5,300 square meters
- Engineering Building: 7,300 square meters

Project Portfolio Gallery
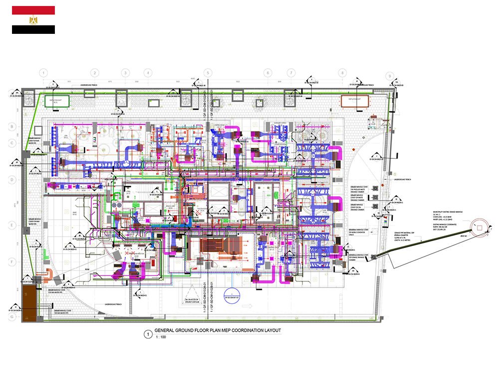
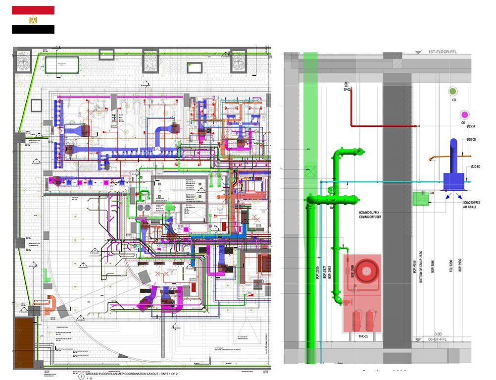
AMC has exerted significant effort to review, update, and enhance the architectural models for the New Giza Project, ensuring they meet the highest quality standards. The team performed extensive modifications to achieve a precise and fully coordinated Interior Design BIM model in compliance with our own AMC standards, which focus on accuracy, clarity, and integration across all disciplines.
As part of the deliverables, AMC provided a comprehensive set of architectural drawings, including plans, sections, elevations, details, and schedules, each prepared to reflect the latest model updates and coordination results. These drawings were produced to facilitate smooth construction implementation, minimize site conflicts, and fulfill the client’s specific requirements.










