Safa Residential Project
About Project
This project involves the implementation of comprehensive BIM modeling and design review services for the Costa Marie , located in Riyadh, Saudi Arabia, covering a total area of 160,000 square meters. The goal is to deliver a coordinated and efficient design process that enhances the overall quality, constructability, and performance of the project across all engineering trades.
Project Visual
These shots have been received and fully developed to achieve a complete BIM model containing all the required details to meet the client’s requirements. This included performing all coordination tasks and BIM works in accordance with the approved standards.
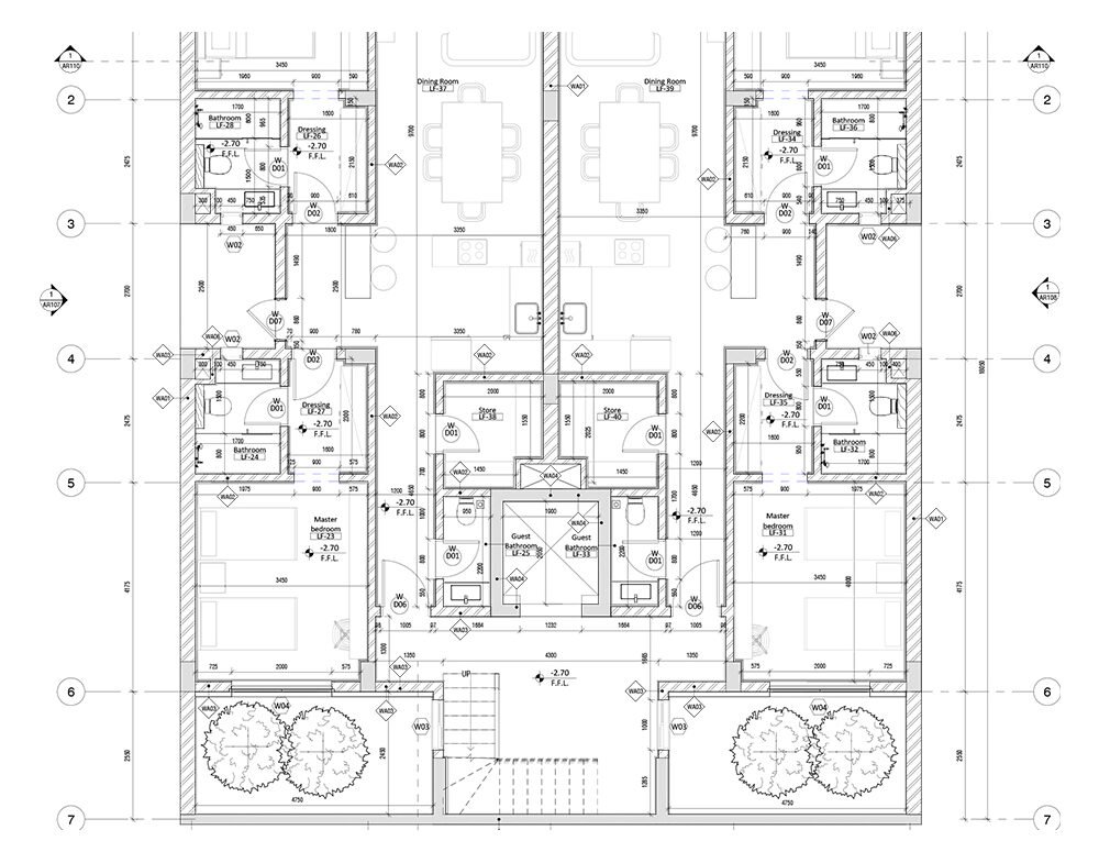
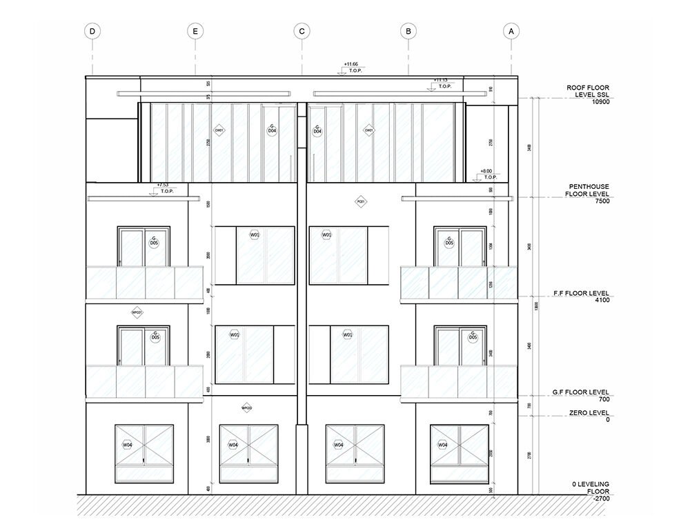
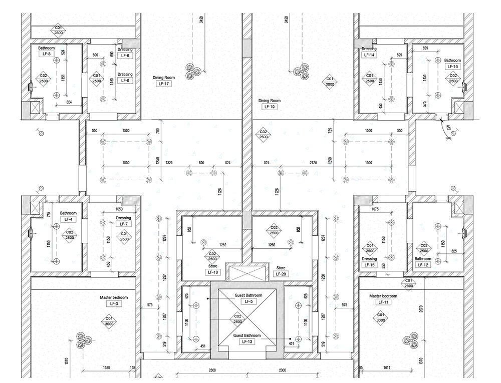
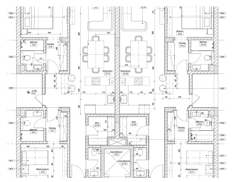
Safa Residential Project Documentation and Details
AMC has exerted significant effort to review, update, and enhance the architectural models for the Safa Residential Project, ensuring they meet the highest quality standards. The team performed extensive modifications to achieve a precise and fully coordinated Interior Design BIM model in compliance with our own AMC standards, which focus on accuracy, clarity, and integration across all disciplines.
As part of the deliverables, AMC provided a comprehensive set of architectural drawings, including plans, sections, elevations, details, and schedules, each prepared to reflect the latest model updates and coordination results. These drawings were produced to facilitate smooth construction implementation, minimize site conflicts, and fulfill the client’s specific requirements.















