Explore Our Engineering & BIM Services
Services Overview
BIM Engineering Services
At AMC Engineer, we offer a comprehensive range of engineering services in Riyadh tailored to meet the evolving needs of construction, infrastructure, and design projects. As a leading engineering consultant in Riyadh, we specialize in delivering accurate, efficient, and cutting-edge solutions that help you execute your projects with confidence.
Whether you need precise BIM modeling services, expert MEP services, advanced laser scanning service Riyadh price, or detailed engineering calculation services in Riyadh, our team is equipped with the expertise and tools to support every stage of your project.

AMC Engineering Services
-
Architecture Services
-
Structure Services
-
Mechanical Services
-
Electrical Services
-
Landscape Services
-
Infrastructure Service
-
Engineering Calculation Services

Architecture Services

Structure Services

Mechanical Services

Electrical Services

Landscape Services

Infrastructure Service

Engineering Calculation
AMC BIM Services
-
BIM Modeling Service
-
Clash Detection Services
-
Cost Estimation Service
-
Shop Drawing Service
-
BIM 4D
-
Training
-
BIM Implementation Service
-
VR Services and Technology
-
Laser Scanning Service

BIM Modeling

Clash Detection

Cost Estimation

Shop Drawing

BIM 4D

Training

BIM Implementation

VR Services and Technology

Laser Scanning
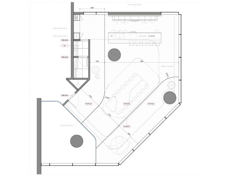
Building Information Modeling for Smarter Projects
we transform construction projects through the power of Building Information Modeling (BIM). Our expertise covers architectural, structural, MEP, and infrastructure disciplines—delivering intelligent, data-rich 3D models that ensure precision, efficiency, and seamless coordination across every phase of the project lifecycle. By integrating advanced BIM workflows, we enable real-time collaboration, clash detection, accurate quantity takeoffs, cost estimation, and construction sequencing. This holistic approach minimizes errors, reduces delays, and optimizes resources.

BIM Modeling
Our Building Information Modeling (BIM) services provide comprehensive and data-rich 3D digital representations of physical and functional characteristics throughout the entire lifecycle of a project — from conceptual design through construction and facilities management.We leverage industry-standard BIM platforms such as Autodesk Revit, Navisworks, and AutoCAD, enabling seamless coordination, visualization, and documentation. Our BIM models are not just visual tools — they are intelligent, information-rich environments that incorporate data for architectural, structural, MEP (Mechanical, Electrical, and Plumbing), and construction elements.

Clash Detection
We help you identify and resolve design and system conflicts in your BIM projects before construction begins, using advanced clash detection and coordination workflows. By conducting comprehensive interdisciplinary model reviews, we minimize costly onsite rework, project delays, and resource waste.

Cost Estimate
We provide accurate, detailed, and model-based cost estimation services using 5D BIM workflows that link cost data directly to your BIM models. This integration allows for real-time quantity takeoffs, budget forecasting, and cost control throughout the lifecycle of your project — from design to construction.

Shop Drawing (Up to LOD 400)
We specialize in producing high-detail shop drawings for fabrication and installation based on fully coordinated BIM (Building Information Modeling) models, ensuring accuracy, constructability, and compliance with industry standards. Our construction-ready shop drawings support precise on-site execution and efficient off-site manufacturing, reducing costly errors and rework.

BIM 4D
Enhance project planning and execution by integrating time-related data with your BIM model through our advanced 4D BIM scheduling services. We link construction schedules directly to your 3D BIM components to enable real-time construction sequencing, visual simulations, and progress tracking, optimizing coordination and minimizing delays.

Training
Empower your workforce with expert-led BIM training programs designed to elevate their skills, enhance project efficiency, and ensure compliance with industry standards. Our BIM training courses are tailored for AEC professionals, covering all disciplines from architecture and structure to MEP modeling, coordination, and project management.

Infrastructure Service
Comprehensive BIM Services Tailored for Infrastructure Projects At AMC, we provide specialized Building Information Modeling (BIM) services designed specifically for the complex requirements of infrastructure projects, including roads, bridges, tunnels, railways, utilities, and urban development. Our BIM solutions enable precise planning, design coordination, and efficient execution throughout the project lifecycle.

Engineering Calculation Service
Comprehensive Engineering Calculation Services for MEP, Architecture, and Structural Projects At AMC, we specialize in delivering precise and reliable engineering calculation services tailored for MEP systems, architectural designs, and structural engineering projects. Our expert team leverages advanced software and industry standards to ensure accuracy, compliance, and efficiency throughout your project lifecycle.

Laser Scanning Service
Comprehensive Spatial Data Capture, Management, and Utilization Integrated with BIM We provide a holistic approach to capturing, managing, and leveraging highly accurate spatial data throughout the entire construction lifecycle by integrating advanced surveying technologies with Building Information Modeling (BIM). This integration enhances project precision, coordination, and decision-making from design through to construction and facility management.
FAQs
What makes AMC Engineer a reliable provider of engineering services ?
Do you offer complete BIM modeling services for large-scale projects?
How can your MEP services support my construction project?
What are the benefits of using 3D laser scanning in construction?
Do you provide engineering calculations for regulatory approval?
How does clash detection help in project planning?
FAQs
What makes AMC Engineer a reliable provider of engineering services ?
Our team consists of certified professionals with years of experience in delivering high-precision engineering services, including BIM, MEP, and structural design. We use advanced tools to ensure accurate modeling, scanning, and analysis.
Do you offer complete BIM modeling services for large-scale projects?
Yes, we provide full-scope BIM modeling services for residential, commercial, and industrial projects. Our models are accurate, data-rich, and optimized for coordination and cost control.
How can your MEP services support my construction project?
Our MEP services include mechanical, electrical, and plumbing system design, coordination, and clash detection. We ensure all systems integrate seamlessly with the building’s structure and local codes.
What are the benefits of using 3D laser scanning in construction?
Our laser scanning services capture precise as-built conditions, helping reduce rework and design errors. It’s especially useful for renovation projects, heritage buildings, or tight construction timelines.
Do you provide engineering calculations for regulatory approval?
Absolutely. We provide accurate and compliant engineering calculations that meet Saudi building codes. These are suitable for government submission and contractor use.
How does clash detection help in project planning?
Our clash detection services help identify and resolve conflicts between various systems (HVAC, electrical, plumbing, etc.) in the BIM model before construction starts, reducing costly on-site changes.
FAQs
Our team consists of certified professionals with years of experience in delivering high-precision engineering services, including BIM, MEP, and structural design. We use advanced tools to ensure accurate modeling, scanning, and analysis.
Our MEP services include mechanical, electrical, and plumbing system design, coordination, and clash detection. We ensure all systems integrate seamlessly with the building’s structure and local codes.
The line color style will help you to highlight the content in the accordion. It will also enable you to create a difference between the content of the accordion
Yes, we provide full-scope BIM modeling services for residential, commercial, and industrial projects. Our models are accurate, data-rich, and optimized for coordination and cost control.
Absolutely. We provide accurate and compliant engineering calculations that meet Saudi building codes. These are suitable for government submission and contractor use.
Our clash detection services help identify and resolve conflicts between various systems (HVAC, electrical, plumbing, etc.) in the BIM model before construction starts, reducing costly on-site changes.

Our team consists of certified professionals with years of experience in delivering high-precision engineering services, including BIM, MEP, and structural design. We use advanced tools to ensure accurate modeling, scanning, and analysis.
Our MEP services include mechanical, electrical, and plumbing system design, coordination, and clash detection. We ensure all systems integrate seamlessly with the building’s structure and local codes.
The line color style will help you to highlight the content in the accordion. It will also enable you to create a difference between the content of the accordion
Yes, we provide full-scope BIM modeling services for residential, commercial, and industrial projects. Our models are accurate, data-rich, and optimized for coordination and cost control.
Absolutely. We provide accurate and compliant engineering calculations that meet Saudi building codes. These are suitable for government submission and contractor use.
Our clash detection services help identify and resolve conflicts between various systems (HVAC, electrical, plumbing, etc.) in the BIM model before construction starts, reducing costly on-site changes.