Glimore Train Station
About Project
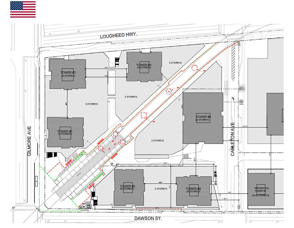
The project covers a total area of 1,460,000 sq ft and is strategically located at the intersection of Highway and Gilmore Avenue in Burnaby. Designed as a major transportation facility, it plays a vital role in enhancing mobility and connectivity within the city while shaping the urban identity of the surrounding district.
AMC was commissioned by Standard Life to undertake the tendering scope, ensuring that all design and technical aspects were prepared in line with project requirements and industry standards. The team applied value-focused methodologies to optimize solutions while maintaining the original design intent, providing a solid basis for project execution.
Completed in 2022, the Burnaby Train Station project stands as a benchmark for efficient transport infrastructure, integrating functionality, quality, and long-term sustainability.

Project Documentation and Details
AMC has exerted significant effort to review, update, and enhance the architectural models for the Glimore Project, ensuring they meet the highest quality standards. The team performed extensive modifications to achieve a precise and fully coordinated Interior Design BIM model in compliance with our own AMC standards, which focus on accuracy, clarity, and integration across all disciplines.
As part of the deliverables, AMC provided a comprehensive set of architectural drawings, including plans, sections, elevations, details, and schedules, each prepared to reflect the latest model updates and coordination results. These drawings were produced to facilitate smooth construction implementation, minimize site conflicts, and fulfill the client’s specific requirements.



















